LOUIS VUITTON - lA ISLA CANCÚN
MATERIA + Gustavo Carmona
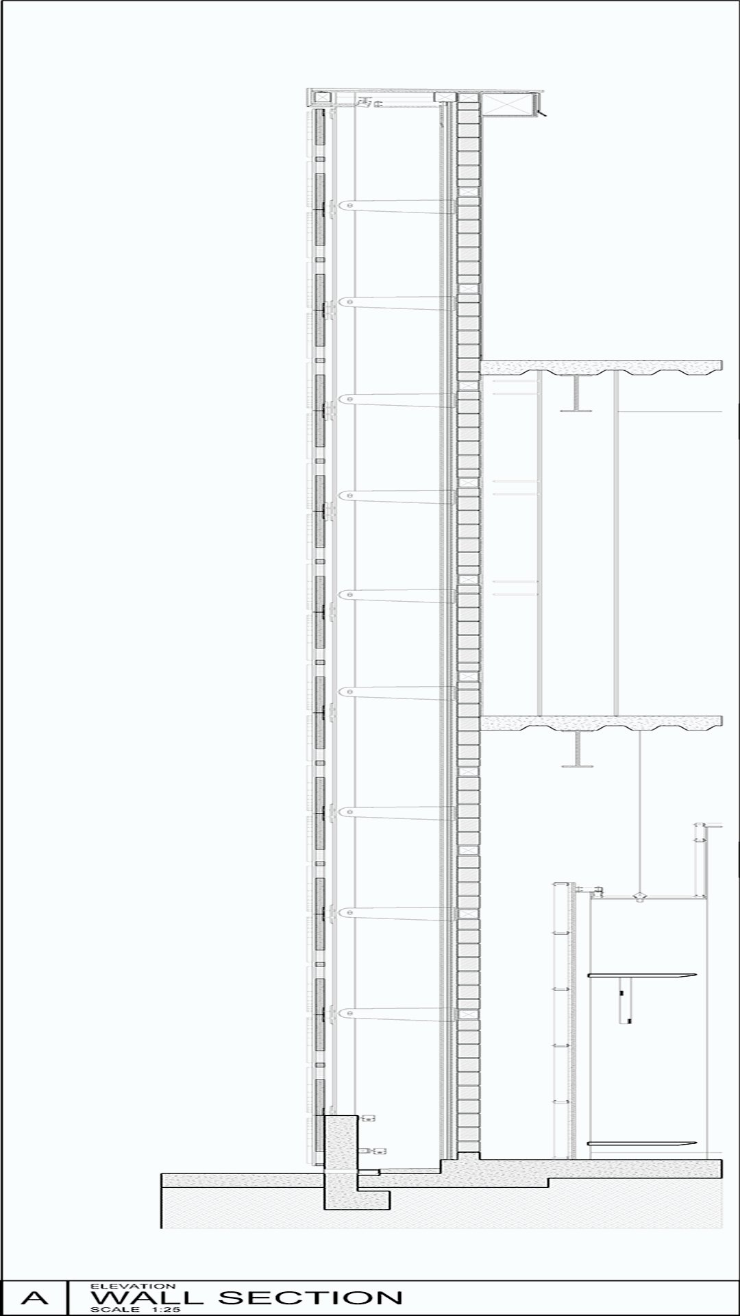
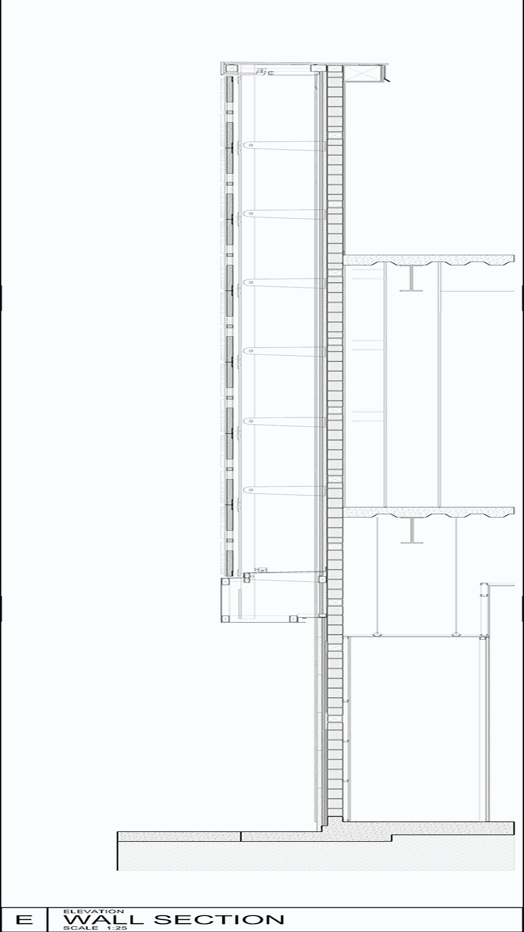
A doce años de su primera colaboración con Louis Vuitton en Cancún, Materia presenta una nueva intervención que reinterpreta la fachada de la boutique como una superficie viva y sensorial. Este proyecto parte de la exploración previa con paneles de madera, llevada ahora al límite con concreto prefabricado, cuya plasticidad permitió reinterpretar la icónica flor de Louis Vuitton como un relieve que se despliega en una coreografía de luz y sombra. El diseño se articula mediante un módulo que, al ensamblarse, genera una superficie continua y vibrante. Cada pieza, concebida con precisión, actúa como elemento constructivo, captando la luz y generando identidad. En su conjunto, estas piezas trascienden su condición individual para formar un sistema que refleja tanto la memoria del diseño original como la capacidad del concreto de dar forma a la emoción y al detalle. Esta fachada reafirma el compromiso de Materia con la comprensión profunda de los materiales y su potencial expresivo, consolidando una arquitectura que se experimenta y se siente.
Créditos del Proyecto
Arquitectura: MATERIA
Lideres de Proyecto: Gustavo Carmona.
Ubicación: Cancún, Quintana Roo
Área: 818 m2
Año: 2025.
Fotografía: Jaime Navarro Soto


