Granito 53
Grupo Hersa
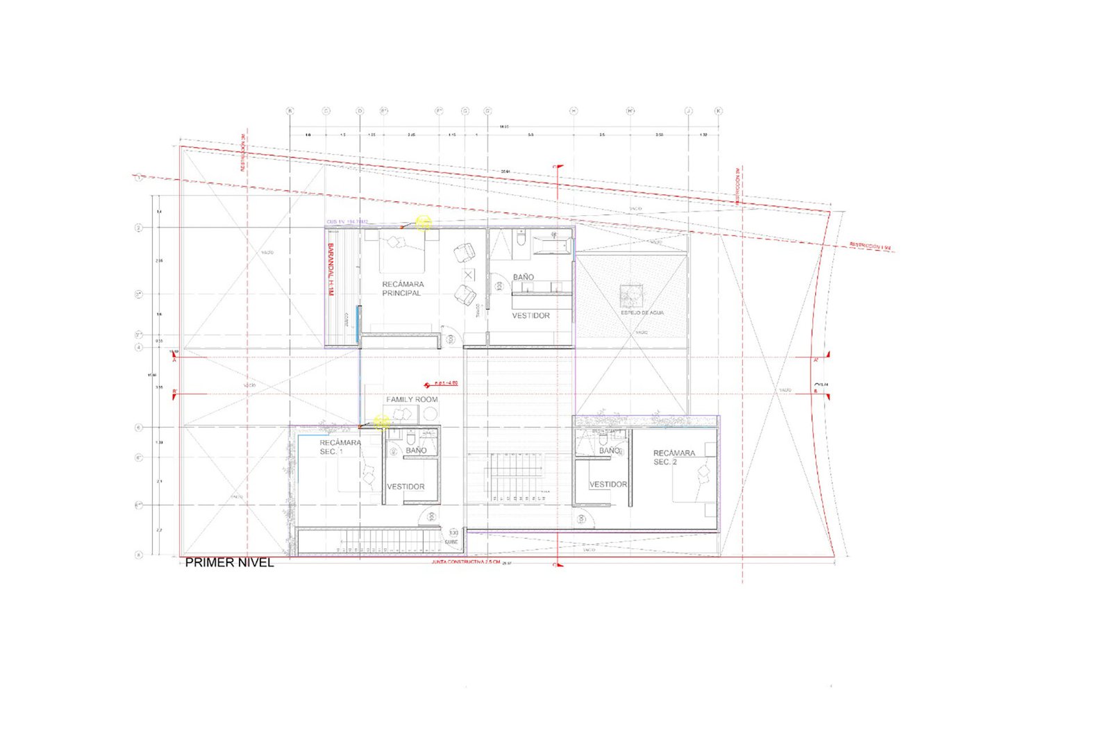
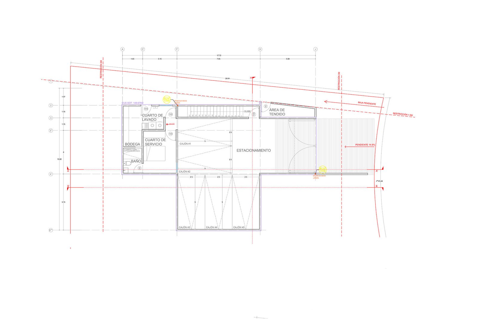
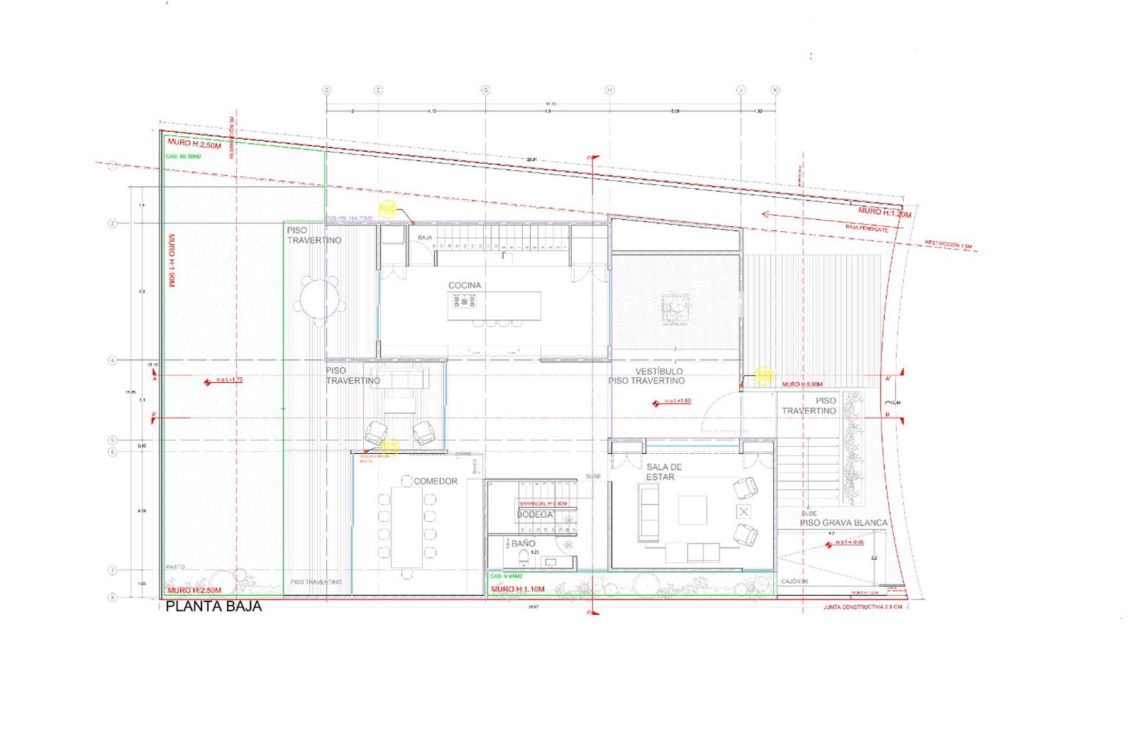
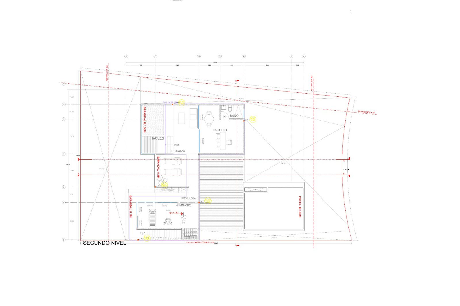
Este proyecto arquitectónico se define por una poderosa y sofisticada declaración de modernidad, enclavado en una superficie de 470 m2 de terreno y abarcando 640 m2 de construcción total.
La residencia se erige a través de la articulación de volúmenes geométricos puros, donde la luz natural y el diseño de la iluminación artificial son protagonistas esenciales, creando una composición exterior que juega con el contraste entre lo macizo y la calidez de los revestimientos.
La materialidad es la base del lujo sutil que caracteriza a esta obra, empleando una paleta rica y atemporal de maderas naturales, que imprimen calidez a las fachadas y a los interiores, en contraste con la solidez de los muros y la pulcritud de los mármoles y cuarzos utilizados magistralmente en pisos y acabados, como se evidencia en la riqueza de las vetas de los pisos pulidos y los detalles del recibidor. Más allá de lo esencial, la concepción del espacio integra amenidades, incluyendo un gimnasio particular, una oficina o estudio dedicado y una espectacular terraza con jacuzzi y vistas espectaculares al campo de golf, diseñada como un santuario para el esparcimiento y la contemplación.
El proyecto de iluminación, desarrollado con un detalle minucioso, no solo cumple una función práctica, sino que es un elemento estético fundamental que utiliza el juego de luces y sombras para acentuar la textura de la madera, la profundidad de los volúmenes y la calidad de los materiales, transformando la percepción del espacio a lo largo del día y la noche, y consolidando esta obra como un referente de la arquitectura residencial contemporánea.
Créditos del Proyecto
Arquitectura: Grupo Hersa
Lideres de Proyecto: Grupo Hersa
Ubicación: Zibatá, Querétaro
Área: 640 m2
Año: 2023.
Fotografía: Ulises Salazar


