Capuchinas Villa
Orther Architects
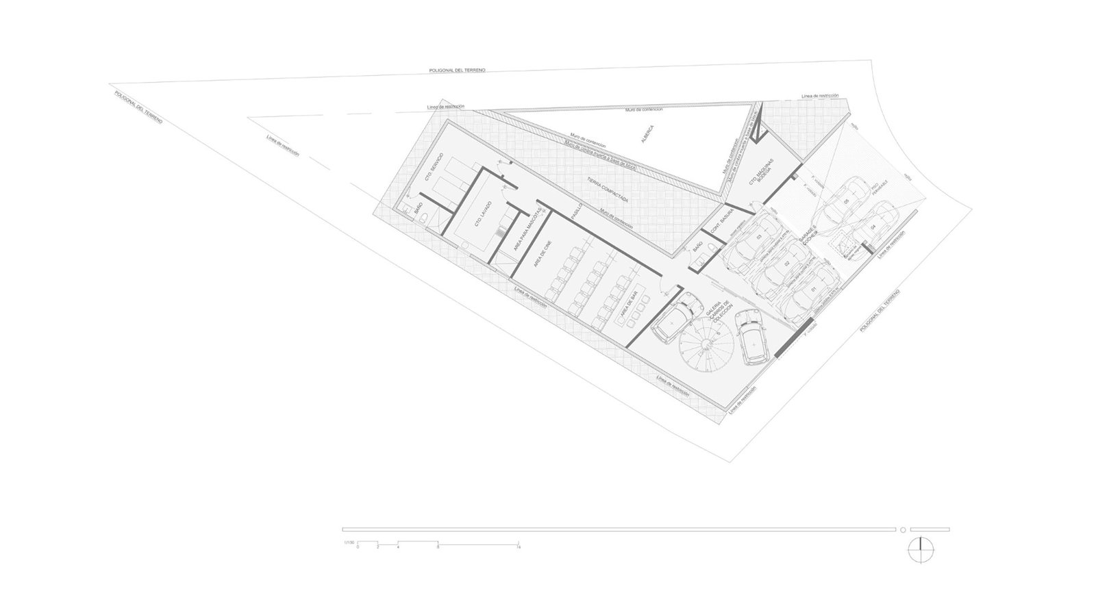
Capuchinas Villa se erige como un proyecto residencial que busca el balance entre la pureza geométrica de la arquitectura contemporánea y la integración armónica con la naturaleza. Desde la fachada principal, la vivienda manifiesta un lenguaje de gran limpieza formal, donde los volúmenes se articulan con sobriedad y elegancia. Las líneas rectas y los planos en ángulo generan una composición dinámica que, sin necesidad de ornamentos, transmite carácter y modernidad. La vegetación cuidadosamente colocada, como las palmeras y jardineras frontales, suaviza la contundencia de los volúmenes y establece un diálogo entre lo orgánico y lo arquitectónico.
El acceso principal está acompañado por una escalinata escultórica que, más allá de ser un simple elemento funcional, funge como antesala al interior. La composición otorga un recorrido ascendente que prepara al usuario para descubrir la amplitud del espacio interior, enmarcado por el contraste entre acabados sobrios y vegetación exuberante.
Al ingresar, se revela la esencia del proyecto: áreas sociales concebidas a doble altura que privilegian la apertura y la conexión visual. El espacio fluye gracias a la ausencia de barreras visuales y a la disposición de ventanales de gran formato que permiten la entrada generosa de luz natural. Estos ventanales no solo iluminan, sino que enmarcan la vegetación circundante, convirtiendo el paisaje en parte integral del diseño interior. De esta manera, la arquitectura se funde con su entorno y multiplica la sensación de amplitud.
La escalera principal, con su trazo curvo y escultórico, se convierte en un punto focal dentro del espacio. Más que un elemento de circulación, es una pieza artística que aporta movimiento y carácter al conjunto. Cada línea, cada textura, parece formar parte de una gran escultura habitable, donde lo funcional se vuelve estético. El mobiliario y los acabados refuerzan esta visión, generando una atmósfera sofisticada y coherente.
Los materiales empleados fueron seleccionados con el objetivo de potenciar la experiencia espacial. Los contrastes entre superficies lisas y texturizadas, entre tonos neutros y acentos oscuros, generan un equilibrio visual que enriquece cada rincón. En los espacios sociales, el mármol, la madera y el cristal se entrelazan con el paisaje exterior, otorgando calidez y elegancia. Todo esto bajo un mismo concepto: la arquitectura como un escenario para la vida, pero también como una obra de arte en sí misma.
En el área exterior, la terraza y la alberca se convierten en extensión natural de la sala y el comedor. La continuidad visual y espacial entre el interior y el exterior es absoluta, gracias a los grandes ventanales corredizos que se abren por completo. El agua de la alberca refleja tanto el cielo como la volumetría blanca y sobria de la vivienda, generando un juego de transparencias y destellos que refuerzan la sensación de tranquilidad. La vegetación perimetral se integra al diseño de la terraza, envolviendo el espacio y proporcionando privacidad sin aislarlo del entorno.
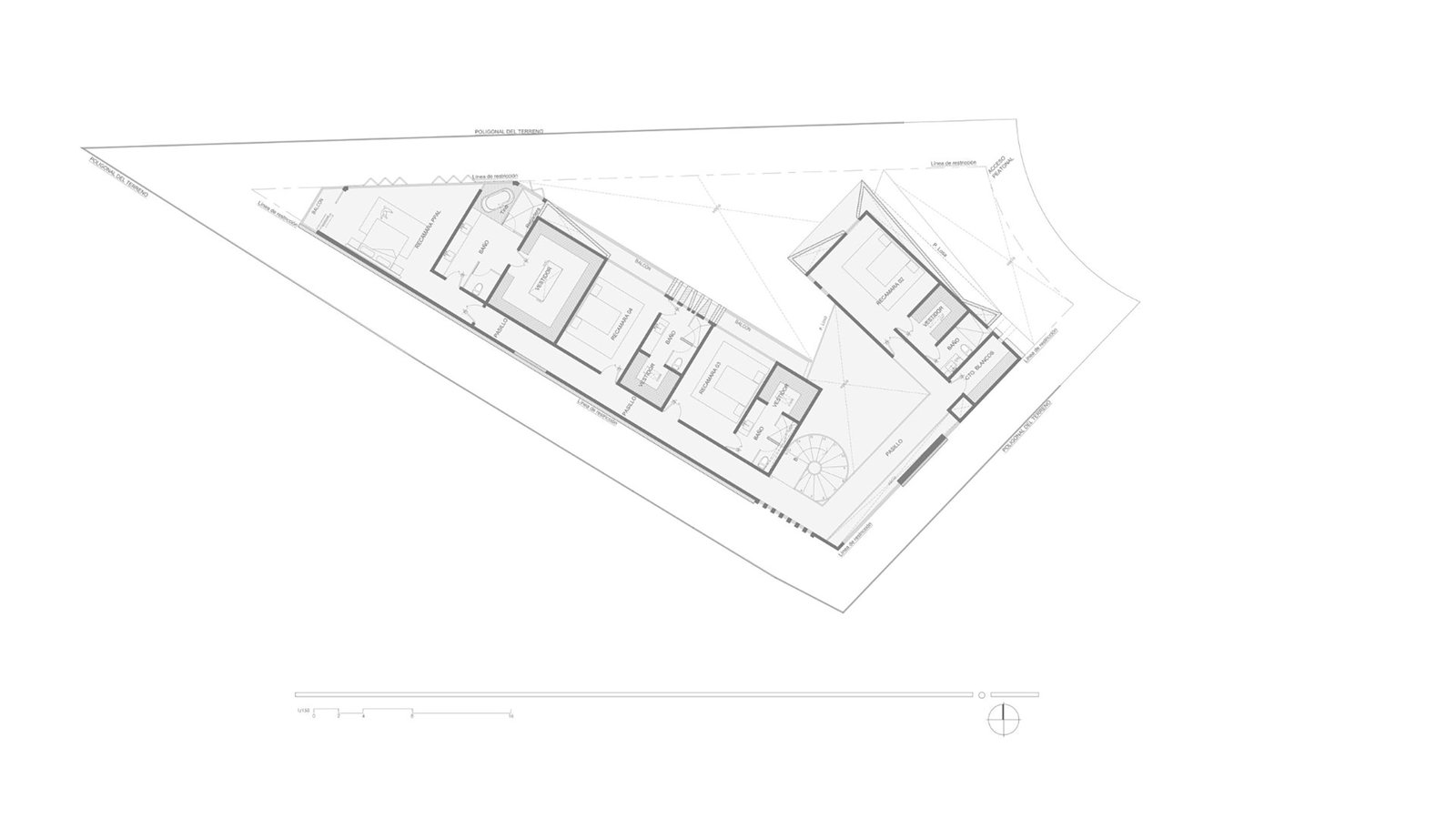
En la planta alta, las habitaciones mantienen el mismo lenguaje de amplitud y conexión visual, con terrazas y balcones que permiten disfrutar del paisaje. La barandilla de cristal en la fachada posterior refuerza la idea de ligereza y transparencia, manteniendo la continuidad entre los espacios interiores y la naturaleza.
Capuchinas Villa es un proyecto que trasciende la simple función habitacional. Es un ejercicio de integración entre arquitectura y naturaleza, en donde cada volumen, cada textura y cada elemento constructivo fue pensado para conformar un conjunto armónico. La limpieza formal de la fachada principal, la amplitud de las áreas sociales, la luz natural como protagonista, y la interacción constante con el paisaje, hacen de esta residencia un ejemplo de cómo la arquitectura contemporánea puede ser a la vez sobria, elegante y profundamente habitable.
Créditos del Proyecto
Arquitectura: Orther Architects
Lideres de Proyecto: Orther Architects
Ubicación: Campanario de las Capuchinas, No.84, Hacienda El Campanario, Querétaro, Querétaro, México.
Área: 923 m2
Año: Inicio de obra en 2022 y finalización en 2024.
Fotografía: Ulises Salazar


