SMYTH 139

R79
SMYTH 139 - R79

SMTYH139, es un proyecto para un entrañable amigo y su familia, grandes promotores de nuestro trabajo, que han creído e impulsado nuestro crecimiento, además de fomentar en nosotros pensamiento crítico.

Se ubica en un lote rectangular de 1600m2 de superficie (20m de frente x 80m de fondo) frente al campo de golf en La Ceiba, un complejo residencial plenamente consolidado a la salida de la ciudad en la carretera que une Mérida con Progreso.

La vivienda de 2 plantas se convierte para nosotros en un nuevo ensayo de como desdibujar la relación entre el afuera y el adentro, de cómo lograr un espacio continuo donde el interior en un destello se transforma en exterior y viceversa. La presencia de vegetación en el lugar y la vista infinita al ¨green¨ sugirieron utilizar para esta ocasión una herramienta poco

socorrida por los arquitectos: ¨el diseño en sección¨. Mediante este, se decidió que es mejor mirar las frondas que los troncos, y que estando medio nivel arriba la percepción espacial del exterior y su continuidad y fluidez se veían fuertemente

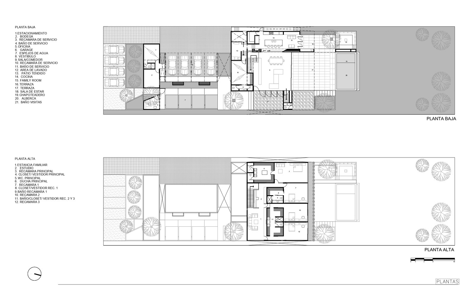
enardecidas. El esquema en planta divide en bandas o franjas el alargado lote, alternando los vacíos con los llenos: Calle, Servicios, Acceso, Casa, Jardín.

Mirando a la calle un gran bloque con servicios se repliega algunos metros para armar una plazoleta de uso y contemplación. Una vez atravesadas estas dos bandas continuando con el proceso de acceder, aparecen el estacionamiento privado con su patio de maniobras y en su extremo opuesto el ingreso peatonal marcado por un escalonamiento de estanques de agua. Es importante hacer notar que en este recorrido los arboles atrapados por las construcciones son pre-existentes, razón por la cual se busca celebrarlos mediante el contraste entre grandes masas y cubiertas muy ligeras prácticamente inexistentes.

El situar la casa más hacia el campo, lo más alejado en lo posible de la calle también tiene la intención de ¨dejar atrás¨ lo cotidiano, el hecho que tanto el estacionamiento como el Zaguán escalonado queden al interior y no sean apreciados desde el exterior confirma su necesidad de aislarse, su vocación de extrema privacidad.

Al llegar a la zona central donde se localiza la vivienda, esta nos recibe con un gran volado, una terraza de acceso cubierta que nos obliga a girar y entrar de lado al interior. Hablar de este cuerpo principal es hablar de una idea concreta que es contundente en su solución formal de volúmenes programáticos que cargan y se posan. Es hablar de materiales, texturas y colores no convencionales, pero cuidadosamente pensados para dar al usuario la sensación de estar en un lugar completamente diferente, transportarlo a un retiro, a una casa de campo fuera del ajetreo de la ciudad.

La planta baja está compuesta por 3 elementos principales: Un volumen sólido pétreo que contiene los servicios (lavadero, área de tendido, recámara de servicio con baño), un muro pesado cuya linealidad direcciona la vista hacia ¨el green¨ y esconde los apoyos semipúblicos (cocina, desayunador, estancia) y un bloque de piel oxidada paralelo al campo, que limita el transito natural desde la calle, confina la terraza techada que es extensión del zaguán y alberga dentro de sí el baño de visitas y una escalera que nos lleva al sótano donde se encuentra un bar y una estancia.

La planta alta se resume en una gran caja roja que se posa sobre los elementos antes mencionados y contiene las habitaciones con sus servicios que se articulan hacia un lado mediante una estancia familiar y que se costuran en el otro por un balcón/andador delimitado por vegetación.

En cuanto a los materiales las decisiones de dichos responden a diferentes circunstancias. Predominan las masas en acabado terroso. Estas son resultado de la mezcla del Chukum con pigmentos naturales como la tierra o Cankab. Su tonalidad hace que el verde de la vegetación se encienda y se vea aún más verde. La elección para lo pétreo ha sido una chapa clara, ¨Tulum¨ le llaman comercialmente y es extraída de bancos de esta paradisíaca zona turística. El tercer y último recubrimiento usado en las ¨cajas¨ portantes, es el Acero Pre oxidado, un proceso que mediante conversores y catalizadores logra que lambrines hechos con placas de acero nos den tono entre gris, negro y café mate.

La madera se utilizó como un elemento para brindar calidez a la vivienda, en esta ocasión se combinan varias especies en diversos formatos, logrando muchas texturas interesantes: Parota, Tzalam, Teca, Cedro, en Shutters horizontales, plafones de varas muy delgadas, escalones de grandes troncos. El piso de toda la casa es en color obscuro, se utiliza el mármol Santo Tomás y este va cambiando de formato dependiendo del uso del espacio, desde grandes placas, pasando por pequeños formatos de 20cm x 20cm y sin dejar atrás el socorrido 30cm x largos libres. La alberca se forro en veneciano verde con la intención de prolongar el jardín privado y fundirlo con ¨el green¨ de tal forma que la noción de donde termina la casa es prácticamente indescifrable.

Créditos del Proyecto

Diseño: R79
Arquitecto a Cargo:
Roberto Ramírez Pizarro.
Equipo de Diseño: Cristina Madera Medina, Gerardo Trejo López, Eduardo Vadillo Priego, Jorge Herrera Tolosa, Alia Peraza Aguilar.
Diseño Estructural: PDE Ingeniería / Rodolfo Pascacio Sánchez.
Iluminación: Luminica / Maribel Morales Hernández.
Paisajismo: Servijardines / Roger Evia González.
Año de Construcción: 2018-2021
Fotografía: Sergio Ríos Pech

Facebook
Twitter
LinkedIn

Dejar un comentario

Tu dirección de correo electrónico no será publicada. Los campos obligatorios están marcados con *